| 物件番号 | MHF87248 | 竣工年月 | 1993/12 |
|---|---|---|---|
| 所在地 | 東京都調布市布田3丁目 | 最寄駅 | 京王電鉄京王線「調布」駅 徒歩6分 |
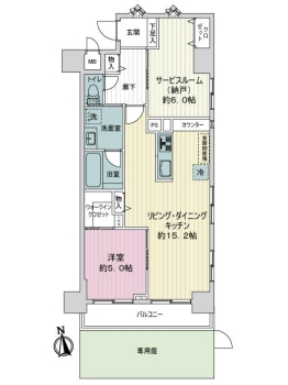
| 価格 | 6,198万円 | 間取り | 1SLDK |
| 専有面積 | 62.05m² | バルコニー面積 | 確認待ち |
| 所在階/階数 | 1 階/12 階 | 向き | 南 |
| 総戸数 | 117 | 現状 | 空家 |
| 管理形態 | 全部委託 | 引渡日 | 相談 |
| 管理員の勤務形態 | 日勤 | ||
| 土地権利 | 所有権 | 建物構造 | SRC |
| 建物種別 | マンション等 | マンション管理費 | 14,800 円 |
| 修繕積立金 | 18,490 円 | 取引態様 | 仲介 |
| 備考欄 | 日勤管理 ・掲載中の家具・什器は販売価格に含まれません。 | ||
| 情報更新日 | 2026年02月22日 | ||
次回の更新予定日:2026年02月23日
